【小二講裝修】第74期 細節又創意的精裝房
發布時間:2018-04-27 02:34:09 ?? 點擊次數:1539次 ??
精裝高端的商品房,要有什么別出心裁的創意設計,或關注哪些細微人性化之處,才會讓客戶產生“哇哦,這就是我想要的家!”這種感覺。可以用智能家居解決嗎?之前就聽人講過一些,當時體會不深。到自己實際跟客戶接觸的時候,才略有些體會。在此分享一些,希望對大家有幫助。
一、玄關
1.入口玄關流線布置

玄關的流線設計:家人和客人的流線分開,并設置不同的鞋柜收納空間
玄關的作用非常大,進門的時候手上拎的、身上穿的都急于找個地兒放下來,尤其是下雨天的雨傘,以及嬰兒車(這點常常被忽視),并且這些亂糟糟的私人用品盡量希望不被來訪的客人看到吧。
例如下圖:

圖中左邊是主人用的玄關,鞋子用品一大堆,但是藏得好,外面看不出亂。而客人用的玄關剛注重表現。總結一下就是,主人用玄關注意:收納能力、能藏好不顯眼,客人用玄關剛注重用材料、形態,燈光等,展示主人的情趣。

這個布置適合大玄關。對于較小的玄關,有如下方式縮減流線距離,使布局更緊湊。

2.玄關的洗手池
特別是對于養著寵物的主人來說,回家進門能洗手也是非當貼心的設計。在玄關設置一個有設計感的洗手池如下:

3.玄關的外套收納空間內設置清潔裝置。
理由不用說了吧,從外面回到家中脫下的外套避免污染室內,并能除去討厭的靜電。

大概說一下,這個是衣柜衣櫥用的xiaoxingw空氣清潔器,基本是灰塵感應啟動的,平時待機狀態。
二、客廳

1.電視墻后面設置儲存空間
客廳說亂七八糟都可以很快的收納到里面,非常便利。突然來客人的時候也能很快的收拾屋子。
平面如圖:

效果圖大改是這樣:

2.在玄關和客廳之間設置過渡的收納空間
自己收拾過就明白收納空間簡直是家的救星啊。在日本的標準,收納空間占到總面積的10%到20%
好的收納空間能創造出非常令人感動的效果來。

這樣,進門的物品和客廳的各種雜物都可以非常方便的關到收納空間里面

三.洗衣空間
能設計到洗衣空間的精裝房才是令人感動的精裝房。

設計的時候就充分考慮從洗衣到晾曬空間到折疊到收納的流線,例如圖中的布局,洗衣房連著陽臺,洗完可以直接拿出去曬,收回來疊好直接放進服裝的儲藏室。
四、寵物空間
隨著養寵物的家庭越來越多,如果設計者能夠貼心的為寵物設計好空間,必定會讓購買者感動不已。
對于寵物,尤其是寵物狗來說,我們需要了解它們的心理。小狗喜歡和人待在一起,但是也需要有自己的空間。在自己的空間里又能夠同時看到主人的活動,這樣小狗會覺得安心。

比如圖中這樣,在客廳附近給狗活動的角落,在臥室附近布置狗的窩。讓小狗能夠時刻感受到主人又能夠保持一定的距離,是非常貼心的。

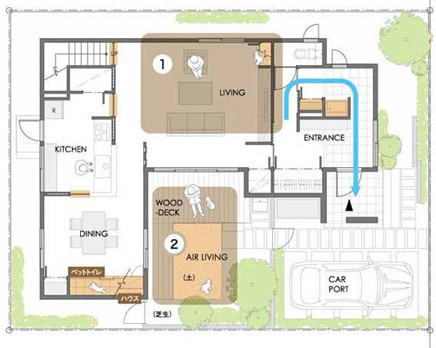
五、用好每一寸空間
戶型大或小都沒有浪費空間的理由。高效的空間利用方式和組織方式,對細致到每一寸空間的有效利用都能夠大大豐富家庭生活。家庭娛樂和家務空間的有效結合也是非常考驗設計師的,也非常能夠說服客戶。
這里用一個簡單的案例來說明:

這個平面看上去非常簡單,讓我們看看它對空間進行了哪些細致的考慮:
1.利用樓梯下的空間作為興趣空間和操作臺。

一般的想法,樓梯下基本是作為倉庫來使用。但是在這個戶型中,恰好樓梯側面對著客廳,在這個小空間里布置桌子能夠讓人在融入客廳活動的同時又保持自己空間的私密感,能夠讓媽媽做一些簡單的手工作業或是作為孩子的作業臺。
2.榻榻米下的收納抽屜

這點已經非常普及了。如果家里有日式榻榻米的話不妨嘗試,收納能力非常強。需要注意的是如果設置抽屜的話,對于榻榻米的結構需要加強,否則荷載導致變形的話抽屜會有打不開的風險。
3、家務間設置:在布局上讓廚房和洗衣房離得近一些能夠大大提高家務效率。

也就是家務空間集中布置。在廚房附近布置洗衣房,做飯的當兒衣服也洗好了,能夠同時兼顧不同的家務勞動,同時可以更方便的照顧到孩子的淋浴等,非常方便。

